Описание
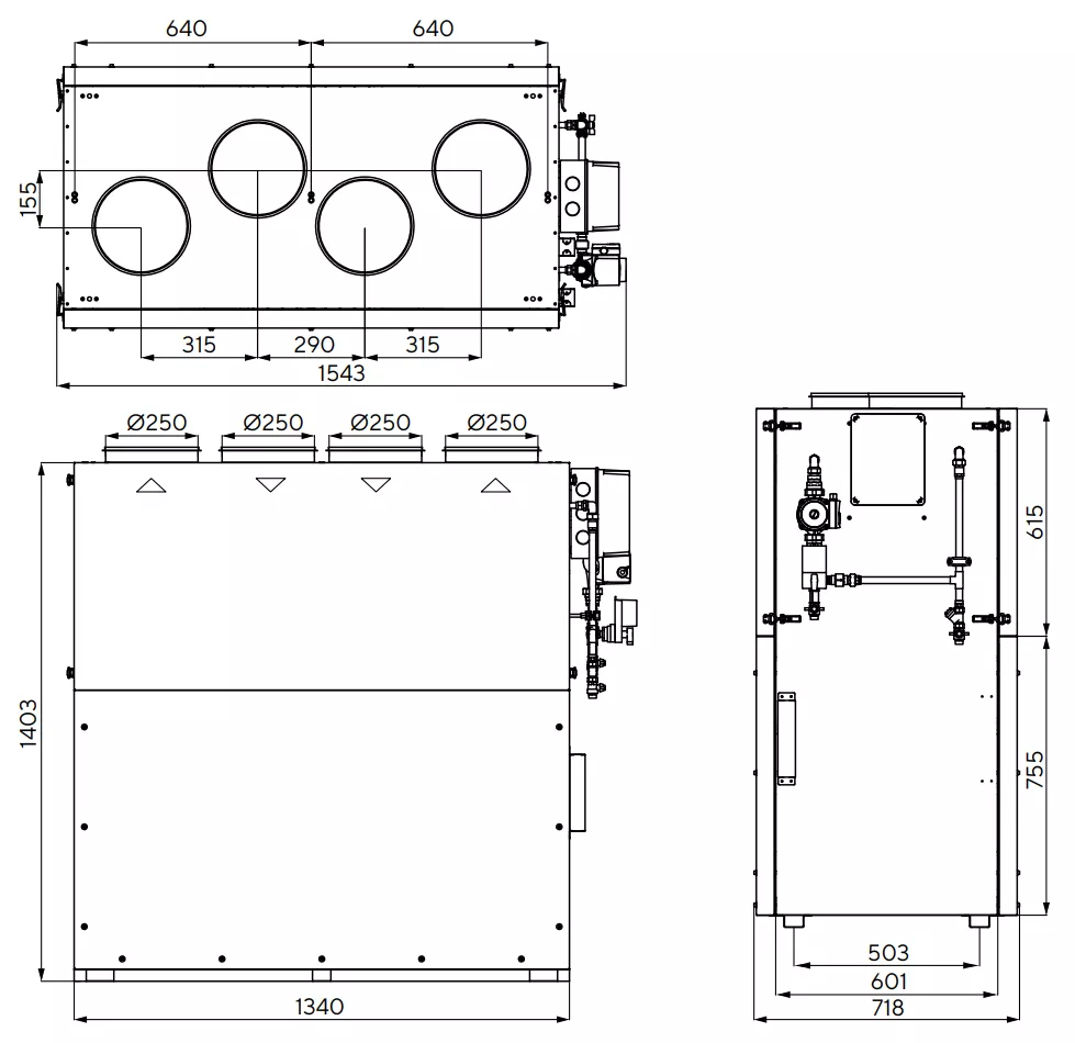
Приточно-вытяжная вентиляционная установка с рекуперацией тепла и сохранением влаги. Оснащается жидкостным нагревателем, встроенным охладителем и трёхступенчатым рекуператором, который обеспечивает работу без преднагрева при уличной температуре до -35 °C.
- Производительность 900 м³/ч
- КПД возврата тепла 78%
- Для помещений площадью до 300 м²
- Однонаправленное моноблочное исполнение
- Автоматика в комплекте

Показать полностью
Свернуть
Характеристики
Бренд
Turkov
Отзывы
Отзывов еще никто не оставлял
